At Olshan, We Stand Behind Our Work. The Cable Lock™ ST Plus System is Backed by an Available Lifetime Transferable Warranty.
Verified Olshan Warranty Customer Reviews
Make the Right Choice for Your Home and Family
With over 90 Years of experience fixing foundations, we know choosing the right repair plan for your home and family is important to you.
At Olshan, our Certified Structural Technicians carefully diagnose the existing problems with your home, and use industry standards for what is defined as a foundation problem as our guideline. With this information, we work with you to develop a repair plan that makes the most sense for you, your home and your unique project goals. Sometimes that is a comprehensive repair and other times it is solving the immediate problem at hand. Here, we have included three very different approaches to solve a foundation problem.
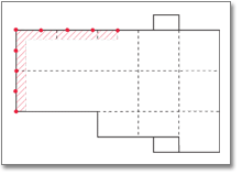
Three Different Approaches for Solving a Foundation Problem
 
 - Partial Exterior Underpin 
 In this example the exterior of the left side, and part of the back of the home are covered against future settlement.
 
 - Exterior Underpin 
 In this example the full perimeter of the home is covered under the warranty but interior settlement would not be covered.
 
 - Exterior and Interior Underpin 
 In this example, the full perimeter and interior of the home is supported. If settlement occurs in the future, adjustments would be covered under warranty
Selling a Home With a Transferable Warranty From Olshan?
The available Lifetime Transferable Warranty from Olshan can be passed onto subsequent owners of your property. Simply complete the Warranty Transfer Form, pay the transfer fee and return the paperwork to Olshan within 90 days of the sale of the property to initiate the transfer process. It’s that easy!
When you sell the property it is important to provide the new buyer with (1) a copy of the original contract, (2) the drawing showing the area repaired, (3) the warranty, and (4) a warranty transfer form.
If you lose your documents, please contact us for a replacement. It is important to notify the buyer of repairs performed on the property and include the conditions of warranty transfer as part of your Seller’s Disclosure.
Need a Warranty Transfer Form? Simply request one from the Olshan office nearest you.
